Casa DB
Ficha tecnica
Arquitectos: Sebastian Bazo / James Hunter.
Ubicación : El Arrayán, Lo Barnechea, Chile
Metros cuadrados construidos: 80 m2
Metros cuadrados terreno: 1.900 m2
Año diseño: 2015
Año construcción: 2016
Materialidad: Hormigon armado, panel sip
Constructora: CSF construcciones

Memoria
Encargo realizado por un matrimonio joven y ademas amigos personales de años por lo que existía la suficiente confianza para plantear las ideas con total libertad, a grandes rasgos el encargo consistía en una vivienda con espacios bastantes amplios y libres, ademas de un lenguaje sencillo y contemporáneo.
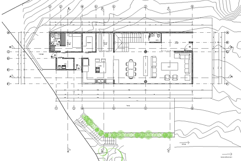
El lugar con bastante pendiente no permitía tener un patio con una explanada en donde se pudiera realizar variadas actividades, cuestión relevante en el encargo, por lo que se plantea como partido general dos niveles aterrazados.
ā
El primero a nivel de calle para estacionamiento y bodega y el segundo a un nivel intermedio donde se emplaza la vivienda, se proyecta una losa la cual permite un espacio exterior amplio y con dominio visual, el cual se relaciona tanto con el interior de la obra como con el paisaje lejano, las circulaciones interiores se ubican hacia la fachada mas desfavorable en cuanto al asoleamiento, por lo tanto se desplazan generando primero un vacío que recibe y le da prestancia al acceso, y segundo la circulación vertical, en ambos casos los espacios quedan cualificados por entradas superiores que insinúan el recorrido de la obra.



















